Gasthaus zum Trauben
Renovation of a hotel,
Weinfelden, Switzerland, 2020
in collaboration with
Werner Keller Architekturbüro
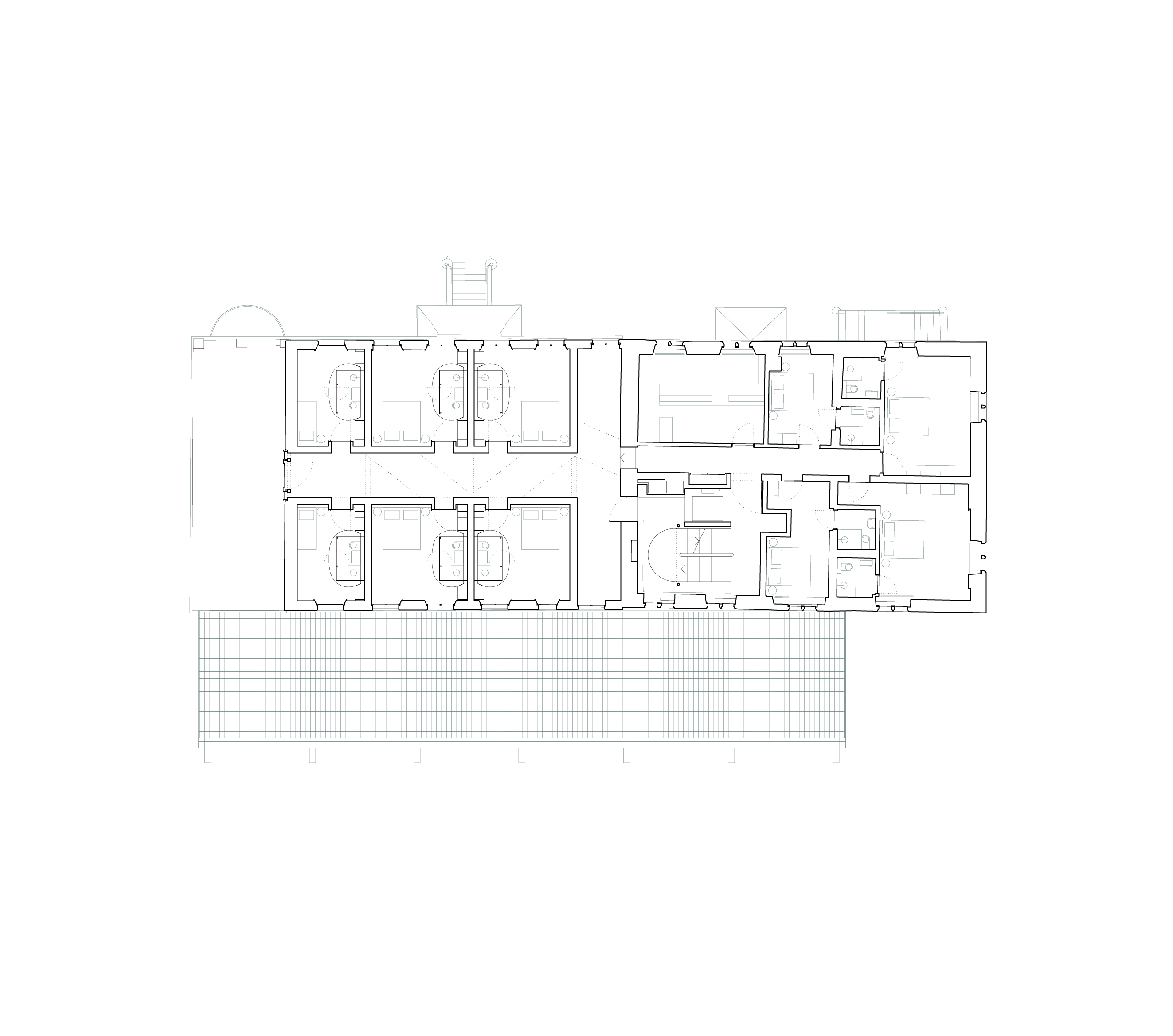
Das unter Bundesschutz stehende Gasthaus zum Trauben in Weinfelden besteht aus einem Hauptbau aus dem 16. Jh., einem Saalbau aus dem 19. Jh. und einem neuen Anbau. Aufgrund eines Wasserschadens wurden zahlreiche bautechnische Mängel festgestellt. Das Gasthaus wurde daraufhin umfassend restrukturiert, die Adressierung wiederhergestellt, das Haus an heutige Anforderungen bezüglich Erdbebensicherheit, Brandschutz, Barrierefreiheit und Bauphysik angepasst und das Betriebskonzept modernisiert.
Städtebaulich werden zwei Situationen aufgewertet: Der Saal wird wieder über den Rathausplatz erschlossen und auf der Rückseite wird mit einer Terrasse der öffentliche Strassenraum platzartig erweitert und vom Hinterhof abgegrenzt. Um die historisch wertvolle Substanz des Hauptbaus möglichst zu erhalten, wurde der Anbau aus den 1960er Jahren durch einen neuen Annexbau ersetzt. Die massive Betonkonstruktion des Ersatzneubaus stützt den Saalbau und übernimmt mit den Räumen Foyer, Küche und Eingang auch programmatisch eine dem Haupt- und Saalbau dienende Funktion ein.
Die Decke über dem Saal war bisher über Stahlstangen am Dachstuhl brandschutztechnisch problematisch aufgehängt. Neu geben die als tragende Fachwerke ausgebildeten Trennwände der Hotelzimmer die Lasten direkt auf die Aussenwände ab. Die Trennwände und der Dachstuhl sind dabei versetzt zueinander angeordnet. So durchdringt der erhaltenswerte Dachstuhl die Einbauten und wird in den Räumen erlebbar. Dieser Effekt wird mit der Hotelzimmererschliessung, welche bis zum First reicht, sowie dem Abrücken der Einbauten von der innenliegenden historischen Aussenfassade des Hauptbaus verstärkt.



















